Skip to content

February 23, 2026

Podere Vigneto: Bringing an Umbrian Casolare to Life

Tags

Casolare restoration Umbria Rural living in Umbria Umbrian countryside

Perched on the gentle hills near Orvieto, Podere Vigneto has always been a place of stories — from its beginnings as a 17th-century convent to its quiet life among vineyards and olive groves.

Today, it is entering a new chapter, one where past and present meet, and where a family home, creativity, and wellness slowly come to life. This is very much a work in progress — a living, breathing transformation that will reveal its character gradually, space by space.

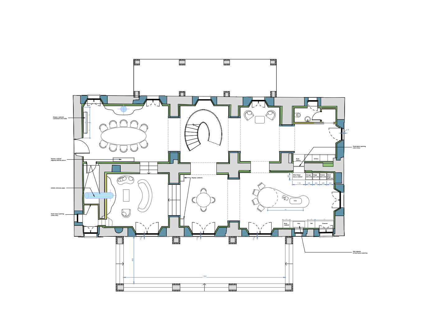
The estate is vast, and the renovation is unfolding across several distinct corners, each with its own purpose, charm, and personality:

The Heart — the main house. The heart of Podere Vigneto, where family life unfolds, meals are shared, and views of Orvieto frame daily rituals. Here, open spaces, restored stone walls, and light-filled rooms will form the core of domestic life, welcoming both everyday routines and gatherings with loved ones.

The Artist’s Haven — the annex and guest house combined. A dual-purpose retreat: a place for guests to stay and for creativity to flourish. A quiet corner where art, reflection, and hospitality meet, providing intimate spaces for both inspiration and rest, tucked gently within the landscape.

The Mirror — the pool. A reflective surface that captures sky and hills, becoming the visual anchor of the estate. More than just a pool, it is a space for pause and contemplation, framing views and connecting indoors with outdoors.

The Pavilion — the wellness area, including the sauna and gym. A dedicated space for movement, restoration, and stillness, designed to nourish the body and spirit in a setting that blends seamlessly with the natural surroundings.

The Meadow — the tennis court. Active yet discreet, integrated gently into the landscape, offering space for leisure and play while preserving the serenity and rhythm of the estate.

The Estate Lodge — the carport and rural outbuilding. A refined reinterpretation of a traditional Umbrian structure, housing cars, equipment, and the quiet rituals of countryside life. It is functional yet elegant, grounding the estate with a sense of place and heritage.

Each of these corners has its own story, its own character, and its own rhythm — yet together, they form a cohesive vision: a family retreat where daily life, creativity, wellness, and nature coexist in quiet harmony.

This first glimpse of Podere Vigneto is just the beginning.

In the coming months, we will explore each corner in detail, sharing the design decisions, material choices, and moments as the estate comes to life. From sketches to spaces filled with light, movement, and calm, the story of Podere Vigneto is unfolding — and we are delighted to invite you to witness every step.

Start Your Home Renovation Journey In Umbria

Open chat
1
Hello 👋
We are here to help you!